ホテル シギラ ミラージュ(スーペリアルーム)
- みき うねおか
- 1月18日
- 読了時間: 2分
基本情報
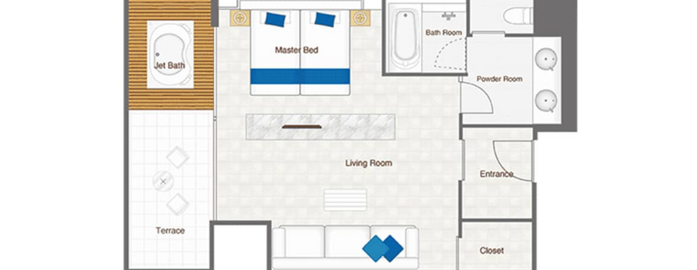
広さ | 65〜67m²(総面積) 52m²(室内) 13〜15m²(テラス) |
タイプ | ベッドルーム、バスルーム、パウダールーム、リビング、テラス、ジェットバス |
定員 | 1~2名様 |
室数 | 66室 |
※ 客室平面図は一例です。
特典・おもてなし
ベイサイド専用特典
ご到着時にウェルカムドリンク・おしぼりのサービス
日中のリゾート内各施設までのご送迎(無料) ※1
隣接した2つのラグジュアリープールのご利用(無料)
ご朝食をブランチへ変更(無料)
女性のお客様には通常アメニティ+スキンケアセットをご用意(無料)
ランドリールームのご利用(無料) ※2
「シギラベイカントリークラブ」特別割引
「シギラ黄金温泉」 特別割引
オリオンビール、さんぴん茶、ミネラルウォーター各2本ずつご用意(無料)
アメニティ・備品
アメニティ
パジャマ、バスローブ、スリッパ、*バスタオル、*フェイスタオル、*ハンドタオル、ボディタオル、ヘアブラシ、Green Laboratory美容液マスク、歯ブラシ、レザー、コットン、マウスウォッシュ、爪磨き、足指パッド(* は今治タオル)
バスアメニティ
ディプティック(シャンプー、コンディショナー、ボディソープ、ボディローション)
客室備品
スマートテレビ×2、電話、エアコン、冷蔵庫、セーフティボックス、加湿空気清浄機、ネスプレッソコーヒーメーカー、ドライヤー、メイクアップミラー、Bluetoothスピーカー、電気ポット(BALMUDA The Pot)、ヘルスメーター
インターネット
無線LAN 環境













